IM Co., Ltd
欢迎来厂参观,免费携带物料试机,专车接送!
产品类别:双梁起重机
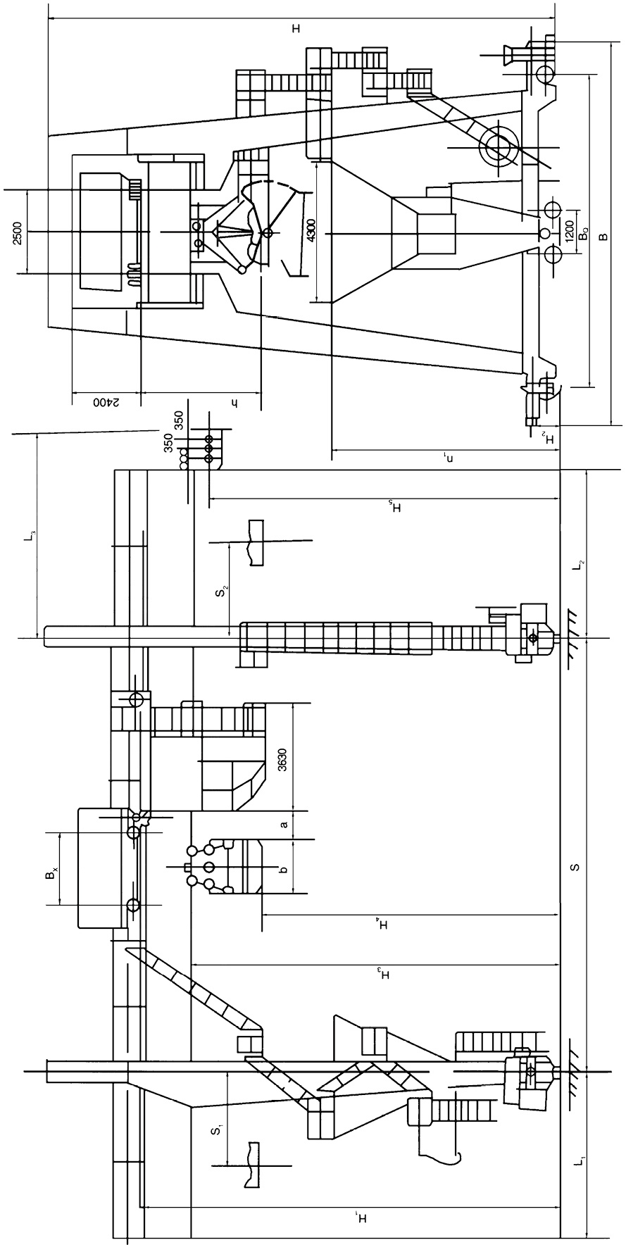
产品说明: MZ型5~10吨双梁抓斗门式起重机 MZType5~10tDoubleBeamGrabDoorTypeCrane
乔经理:18662173777
邮箱:imdianjing@163.com
地址:江苏省苏州市吴中区石湖西路188号
PRODUCT INTRODUCTION
MZ型5~10吨双梁抓斗门式起重机
MZType5~10tDoubleBeamGrabDoorTypeCrane
PRODUCT ADVANTAGES
专业的研发技术人员
研究产品种类多种多样
产品可长时间稳定工作
拥有完善的售后服务体系
NEWS INTRODUCTION
在检查单梁起重机的时候 要注意以下几点:1检查各减速器的油量,如低于规定的油面高度时,应及时,油质必须干净,均不得有腐蚀...
MESSAGE
返回顶部
在线客服
18662173777
扫一扫 关注我们